- Typologie du projet: conception d’aménagements à distance
- Appartement neuf, acheté sur plan
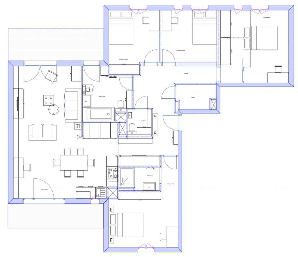
- Superficie: 125m2
Lorsque Cécile et Guillaume achètent cet appartement sur plan, ils ont deux jeunes garçons. L’appartement est un regroupement de 2 lots, et ils ne peuvent pas faire exactement tout ce qu’ils souhaitent dans la répartition des pièces. Et lorsqu’ils deviennent propriétaires, ils viennent d’avoir un 3ème enfant, une petite fille. Il faut alors répartir équitablement les 4 chambres, et surtout, penser aux aménagements avec BEAUCOUP de rangements.
Je suis alors missionnée pour une mission globale: proposer des aménagements pour vivre à 5 dans cet appartement, où les enfants pourront grandir, jouer, ranger, étudier, et où les parents pourront se reposer et travailler. De plus, il faut également prévoir des endroits pour exposer quelques objets de collection et le grand nombre de livres des clients, ainsi qu’un coin bureau pou chacun des parents

L’appartement possède 4 chambres, dont une avec salle d’eau privative, qui devient la chambre parentale, et une très grande chambre aux normes handicapées. Je propose alors un aménagement de cette grande chambre en la scindant en une chambre de taille « ordinaire » et une petite pièce permettant de ranger les jouets et les vêtements des garçons. Je propose aussi de créer un grand mur de rangements et étagères déco, avec un coin bureau dans le séjour, et un petit coin bureau dans la chambre parentale.

Pour valider les ambiances et les idées, je propose 3 planches d’idées avant de passer à la conception en 3D

bureaux cote à cote dans le salon… 
… ou 2 bureaux séparés dans la maison? 
idées pour la séparation de la grande chambre
Enfin, je propose la conception de 2 solutions pour le séjour, 3 solutions pour la chambre parentale et 1 solution pour la grande chambre
Pour le séjour:
- La première solution fait intervenir un système léger de crémaillères métalliques noires et étagères en chêne que l’on trouve dans le commerce, à monter soi-même
- La seconde solution se compose d’un aménagement sur mesure, composé d’une arche de séparation entre la salle à manger et le salon, et d’une composition pour le salon

avant aménagement 
solution 1 
solution 1 
solution 1 
solution 1 
solution 1 
solution 1 
solution 2 
solution 2 
solution 2 

solution 2 
solution 2 
solution 2
Pour la suite parentale:
- La première solution met en scène dès l’entrée de la chambre un coin bureau matérialisé par une composition de tasseaux en sapin
- La seconde solution respecte le schéma électrique de la chambre et garde le lit à sa place déterminée par le constructeur. Le coin bureau est mis en scène grâce à un papier peint fleuri
- La troisième solution conserve le même schéma, mais intègre le coin bureau dans une composition globale de l’aménagement du dressing

avant aménagement 
solution 1 
solution 1 
solution 1 
solution 2 
solution 2 
solution 2 
solution 2 
solution 3 
solution 3 
solution 3
Pour la grande chambre:
La séparation est pensée en contreplaqué de bouleau et médium laqué blanc, et fait un ensemble cohérent avec la chambre. Elle sert de tête de lit dans la partie chambre

avant aménagement 
la pièce séparée 
partie rangements 
partie chambre

































