Coaching travaux Design d'intérieur Réalisations

Réaménagement d’une salle d’eau à Cholet

  • Typologie de projet: Clés en mains, intervention du client sur certaines tâches
  • Superficie à rénover: 17,5 m2 (salle d’eau/ WC/ buanderie)
  • Budget travaux : 25 000€
  • Réalisation des travaux: Entreprise BIZEUL AGENCEMENT, Antoine BOUTEVIN, SAS DUTEIL-TATTEVIN, SARL REVE ET NOVATION, MC Electricité, MUR DéCO

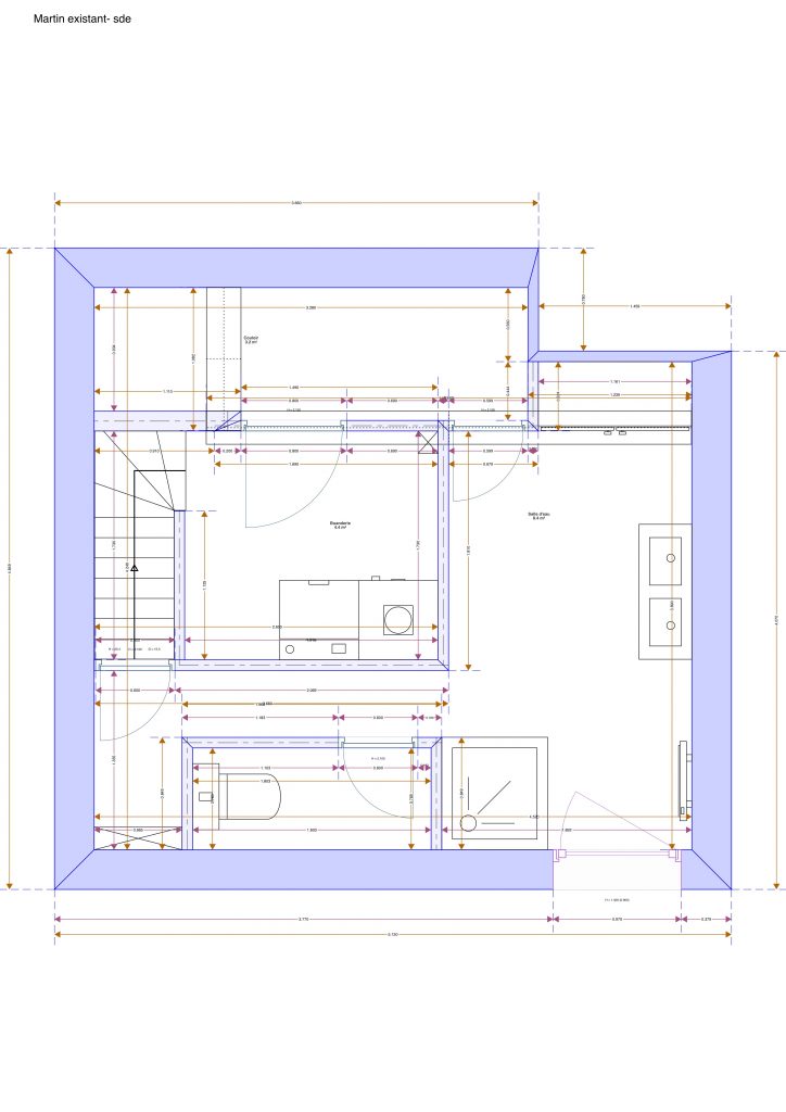
Dans une maison de bourg en pierres, la salle d’eau à l’étage est vieillissante et non fonctionnelle. Les WC se trouvent dans un couloir sombre de la salle d’eau qui mène à l’escalier des combles, la buanderie est petite et sombre. De la lumière et plus d’espace, voilà la demande des clients.
Nous supprimons donc l’escalier fixe menant aux combles pour le remplacer par une échelle rétractable, nous agrandissons la buanderie et la munissons de verrières pour la luminosité et l’effet d’espace, depuis la salle d’eau comme depuis la buanderie.
Après quelques propositions d’aménagements, nous validons ensemble un plan, et je propose aux clients 3 aménagements depuis ce plan

Les plans du avant/après:

Le premier design proposé:

Le second design proposé:

Le dernier design proposé, choisi par les clients:

Nous avons donc également fait la conception de la buanderie sur ce design:

Et voici donc le résultat après travaux!

Vous pourriez également aimer...

Laisser un commentaire

Votre adresse e-mail ne sera pas publiée. Les champs obligatoires sont indiqués avec *